迷你CC自助仓旗舰店 | 靠“铺”的选择怎么做?

迷你CC自助仓最新资讯 2020-07-20 09:59:34

  当全世界商业街上的大小商厦都在受电商冲击的时候,紧贴居民区、学校等固定人流的临街商铺因其便利性和服务性可说是受冲击最小的实体产业了。


5f14f93f9b470.jpg

  

      每个零售商都希望找到一个绝好的临街铺子,那什么样的临街商铺是好的铺子?

黄金临街商铺三原则

  所有零售商、房地产服务商都会告诉你三个原则:

  第一,是地段与人流,这是零售业的根本。唯有好的地段,才有足够的人流,获得足够的营业额;

  第二,就该是商铺所在建筑的结构、质量,这是安稳营业的基础,一个脏乱差的建筑必然影响顾客体验,这种环境下商铺难以维系顾客。

  第三,是业主可以提供一份稳定的租约,这是可持续经营的关键,是制定营业计划的依据。


5f14f9666bc70.jpg

  

        接下来,我们用一个实例来具体说明下是一个好的商铺是怎样符合上述三条的。

一个好的商铺应该是这样

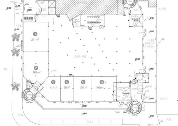
  位于上海真如的迷你CC自助仓旗舰店原先是一座购物中心,现改建为集仓储、商铺于一身的复合商业体,目前在一楼有6个临街旺铺对外出租。

  先来看地段与流量。迷你CC自助仓旗舰店位于城市副中心真如的核心地段,400米外是11号线的地铁站,7号线从旁经过,14号和15号正在建设,20号线也在规划中,未来将形成五轨交汇的轨道交通格局,这种交通枢纽地段必然带来极大客流,优质程度堪比步行街。


5f14f982d8e61.jpg


  此外,迷你CC自助仓旗舰店的地段优质性还体现在被三种不同环境环绕——北是上海火车站西站,带来大量商务客流;东是马路对面的农银大学上海分校、上海政法学院普陀校区、上海曹杨第九中学,学生客源充沛;南、西为众多居民区包围,可提供长期、稳定的家庭消费。这种复合型环境提供的客流丰富多样,不论什么零售业态都能从中找到商机,大大降低了经营风险。


5f14f997579c2.jpg

  

        再来看结构、质量。迷你CC自助仓旗舰店原先是一家购物中心,从设计伊始就是为了零售业服务,1楼旺铺临街利于商业布局的优点,对商家有利,对顾客友善。现在提供的商铺面积从98到261平米不等,挑选余地大,无论哪种零售业态都可容纳,便于因地制宜布局。


5f14f9e16acb4.jpg


  最后,迷你CC自助仓旗舰店一楼的6个临街旺铺产权归属清晰,同时由全球知名的房地产顾问服务公司莱坊进行专业租赁服务,租约简单稳定